Accueil » Nos activités » Bim Management
BIM management

Gestion de projet BIM
La gestion de projet BIM est la première mission de BIM management. Elle permet de connaître les niveaux de maturité BIM des entreprises, mais aussi les objectifs attendus.
Cette mission est assurée par des personnes clés, que sont le BIM Manager et le BIM coordinateur Global. Ils sont chargés d’encadrer les équipes projet dans la mise en place et l’utilisation de la maquette numérique, et de les guider afin d’assurer la réussite de ce dernier.
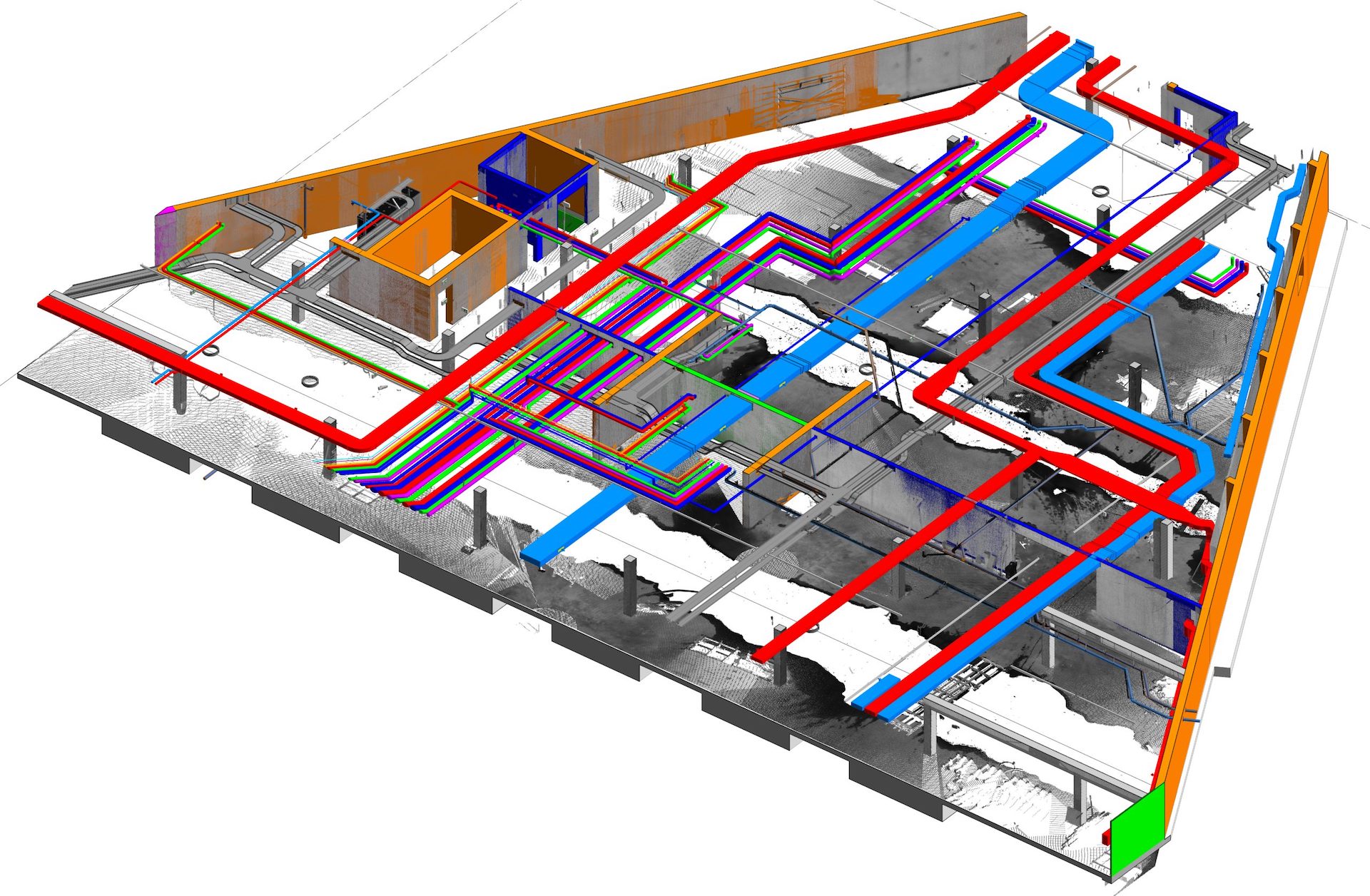
Coordination BIM
La coordination BIM consiste dans la coordination spatiale des mandataires techniques, mais aussi de l’ingénieur civil et de l’architecte. C’est une étape cruciale du BIM management, elle vient en complément de la mission de coordinateur technique attribuée à un mandataire.
Ce cas d’usage BIM est souvent le premier à être utilisé sur les projets car la coordination BIM est bénéfique à l’optimisation d’un ouvrage de bâtiment ou d’infrastructures. Il est important de rappeler que cette étape de BIM management ne se substitue pas aux responsabilités techniques de chacun des acteurs du projet.
Building execution plan (BEP)
Le BEP, connu en français sous le nom de Plan d’exécution BIM, est le document central permettant le bon déroulement d’un projet BIM. Il est rédigé par le BIM Manager, en collaboration avec les chefs de projet et le maître d’ouvrage.
Le Plan d’exécution BIM doit retranscrire les missions demandées par le maître d’ouvrage pour atteindre les objectifs BIM. Ce document est signé par tous et peut être annexé au contrat afin de garantir l’implication de tous les mandataires et sous-traitants.
Configurateur PPE
Le configurateur PPE est la suite logique d’une maquette d’architecture dans un projet de construction de logement. Cette possibilité offerte par le projet de BIM management est un atout supplémentaire pour les vendeurs et les acquéreurs de biens.
L’objectif est d’utiliser le modèle pour l’intégrer dans un showroom virtuel, qui permettra aux futurs acquéreurs de réaliser les modifications souhaitées en lien avec les choix disponibles dans le programme. Ainsi, ils auront alors les détails du prix en fonction de leur sélections le tout dans un environnement 3D & HD pour une immersion réaliste.
Mieux comprendre le concept du BIM Management
Le BIM Management, ou gestion de projet BIM, de l’information (LOI) et du graphisme (LOG) du bâtiment, est une méthode de gestion de projet de construction qui utilise des technologies numériques pour gérer et exploiter les informations sur un bâtiment tout au long de son cycle de vie.
Grâce au BIM management, les différents intervenants d’un projet de construction – architectes, ingénieurs, entrepreneurs, etc. – peuvent collaborer sur un environnement de données commun (CDE) qui garantit un niveau d’information uniforme pour tous. Cela améliore la coordination et la communication entre les parties prenantes du projet, réduisant ainsi les erreurs et les retards, et améliorant la qualité globale du programme.
En utilisant des modèles 3D de haute précision (LOD 350), le BIM management permet une meilleure planification et une prévision plus précise des coûts du projet, ce qui offre un avantage significatif en termes de gestion des risques et des aléas d’un projet.
Le BIM Management comprend également la gestion des données, ce qui signifie que toutes les informations relatives au projet sont centralisées et accessibles à tous les intervenants. Cela favorise une meilleure collaboration et une traçabilité accrue des modifications apportées au projet.
En résumé, le BIM Management est une méthode de gestion de projet qui utilise des technologies numériques pour améliorer la coordination, la communication et la qualité d’un projet de construction, tout en réduisant les coûts et en optimisant la planification.
La convention BIM : pilier de la coordination des projets BIM
La convention BIM (également connue sous le nom de « BIM Execution Plan ») est un document contractuel essentiel dans le processus de gestion BIM. Elle garantit une compréhension commune des objectifs, des rôles et des responsabilités entre tous les intervenants d’un projet BIM.
Contenu typique d’une convention BIM
Une convention BIM inclut généralement les éléments suivants :- Objectifs et exigences : définir les « Exchange Information Requirements » (EIR) pour le projet.
- Organisation et acteurs impliqués : préciser les rôles, tels que le coordinateur BIM, le référent BIM, et le maître d’ouvrage.
- Normes et protocoles : conformité aux standards comme la norme ISO 19650.
- Processus de gestion et échanges de données : description des flux d’informations via l’environnement collaboratif (CDE).
- Maquette numérique et niveaux de détail : cahier des charges BIM définissant les niveaux de développement (LOD) et l’interopérabilité des formats, comme les Industry Foundation Classes (IFC).
Validation et signatures
La validation et la signature de la convention BIM par toutes les parties prenantes (équipe de maîtrise d’ouvrage, bureaux d’études, maîtrise d’œuvre, etc.) renforcent son rôle contractuel. Cela engage chaque acteur à respecter les processus et les objectifs définis, tout en évitant des divergences ou conflits pendant l’exécution du projet.Différence entre BIM Manager et AMO BIM
Le rôle du BIM Manager
Le BIM Manager est responsable de la coordination des modèles BIM. Ses missions incluent :- Gérer les échanges de données dans le Common Data Environment (CDE).
- Assurer la cohérence et la qualité des maquettes.
- Encadrer les bureaux d’études dans le respect de la convention BIM.
- Superviser la détection des conflits et résoudre les problèmes techniques.
Le rôle de l’AMO BIM
L’AMO BIM accompagne la maîtrise d’ouvrage dans la stratégie globale du projet BIM. Ses missions incluent :- Définir les objectifs BIM en phase amont.
- S’assurer que les livrables respectent le cahier des charges BIM.
- Valider la compatibilité des données pour l’exploitation et la maintenance.
- Former et sensibiliser les intervenants sur les enjeux BIM.
Critère | BIM Manager | AMO BIM |
---|---|---|
Positionnement | En phase d’exécution | En phase amont et pilotage stratégique |
Rôle principal | Coordination technique et gestion des données | Conseil et définition des objectifs |
Outils utilisés | Plateformes collaboratives, logiciels BIM | Documents stratégiques, audits |
Interactions | Maîtrise d’œuvre, bureaux d’études | Maîtrise d’ouvrage |
Qualité et vérification des modèles BIM
Contrôle de qualité avant livraison
La vérification des modèles BIM avant leur livraison est une étape cruciale pour garantir leur conformité avec les standards prédéfinis. Cela comprend :- L’audit des compétences des contributeurs.
- Le contrôle des objets (attributs, dimensions, classifications).
- La validation des livrables par rapport au cahier des charges BIM.
Détection et gestion des conflits
Les conflits techniques, tels que les superpositions ou incompatibilités entre objets, peuvent être identifiés grâce à des outils spécialisés. La gestion efficace de ces conflits garantit une coordination fluide et évite des erreurs coûteuses en phase de construction.Outils de vérification et gestion
Pour vérifier la qualité et gérer les conflits, des logiciels tels que Navisworks, Solibri, ou BIMcollab sont couramment utilisés. Ces outils permettent :- De générer des rapports sur les anomalies.
- D’automatiser les procédures de vérification.
- D’assurer l’interopérabilité entre les différentes disciplines.